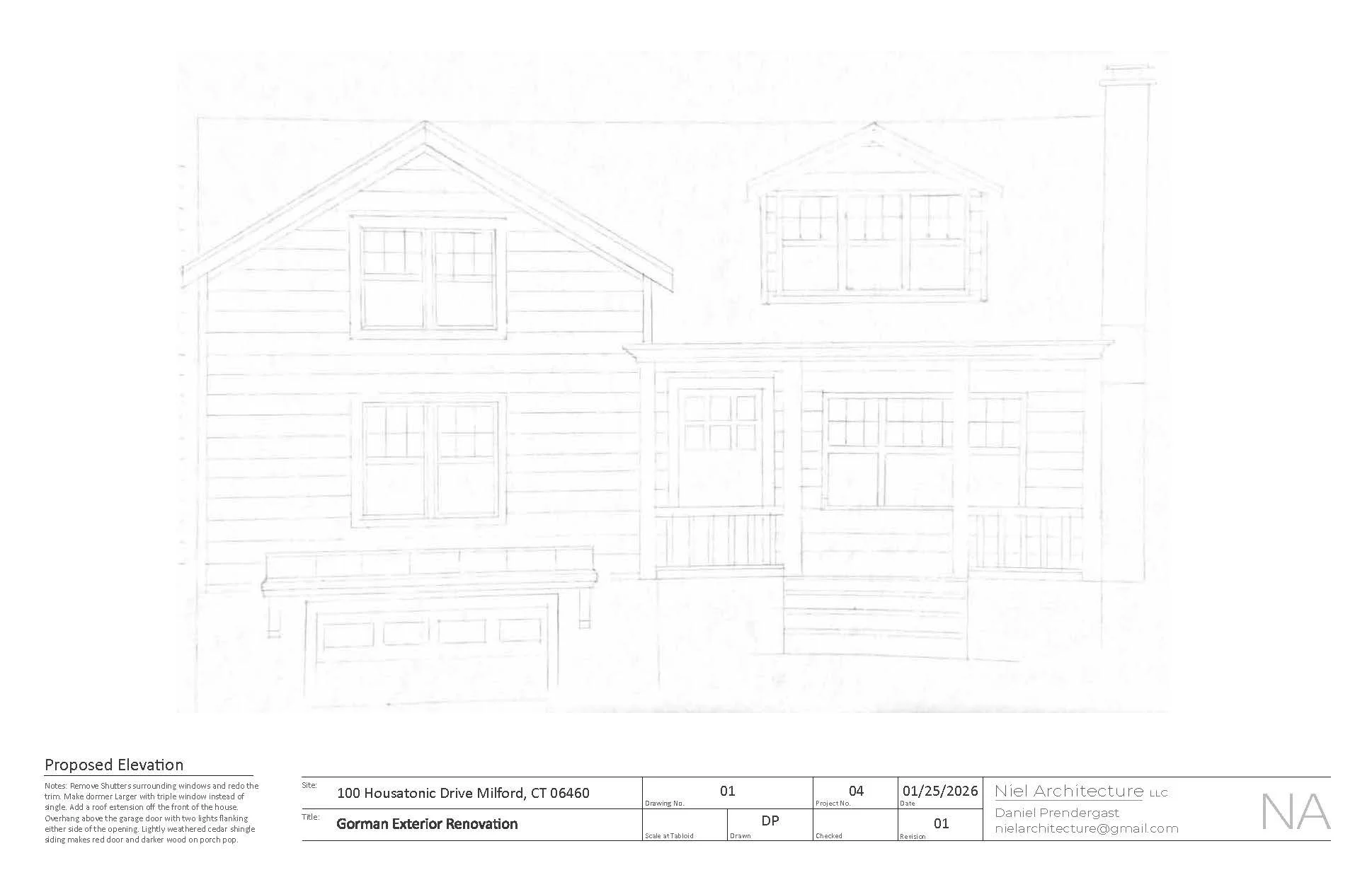
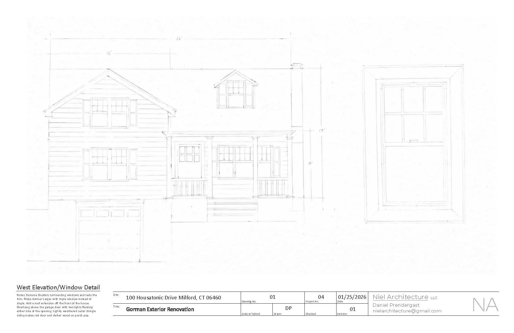
100 Housatonic Drive

The owners of this beautiful home with a great view of the Housatonic River wanted to renovate the exterior of their house while making a few other modifications. A larger dormer above the entry porch and a more exaggerated roof line extension was recommended as well to establish a more prominent character in the project. The overhang above the garage door adds character to the facade while also acting as a weather buffer. Removal of the shutters around the windows and a lighter toned shingle siding complimented the natural wood tones on the exterior and helped complete the transformation of this home.

Next
Next

Laurel Road